Chestermere Custom

Chestermere Custom was designed for an older couple with grown children, focusing on providing separate spaces for the kids and ample room for entertaining. Key design features include:

  • Three distinct sitting areas on the main floor, ensuring plenty of space for relaxation and socializing during gatherings.

  • A dedicated kids' wing, offering a private and comfortable space for the children to enjoy themselves.

  • A hobby room, providing a dedicated area for pursuing personal interests and activities.

  • A centrally located kitchen, serving as the heart of the home and facilitating easy access to all areas for entertaining and daily living.

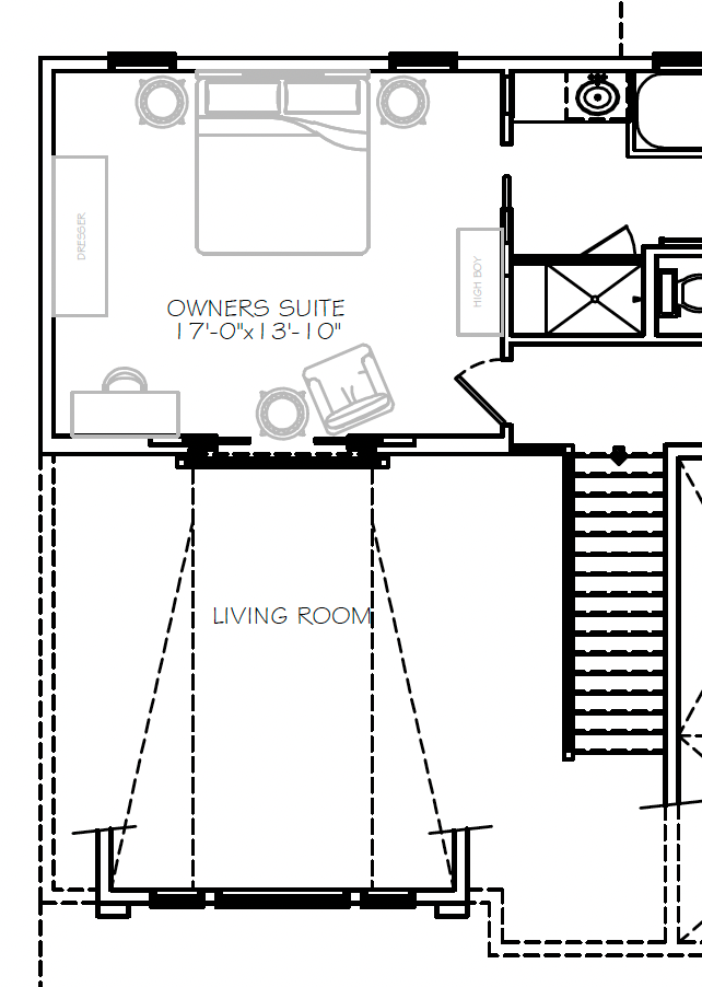
  • A primary suite that opens up to a vaulted living room, featuring large front windows designed to capture and enhance the stunning lake view.

Chestermere Custom perfectly balances the need for shared family spaces and individual privacy, creating an ideal environment for both entertaining and everyday living while making the most of the beautiful lakeside location.

Previous
Previous

Priddis Custom

Next
Next

Parkland Beach Custom Beach